3625 Windspun Drive

Huntington Beach, CA 92649

$ 1,415,000

Price

3

Beds

2.5

Baths

1,890 Sq. Ft.

$749 / Sq. Ft.

92 Days On Market

Favorite

Share

Have You Been Pre-Qualified? Start Now

Listing provided by agent Dusty Mulhearn BRE# 01909037 at Real Broker.

Last Updated: 76 days ago

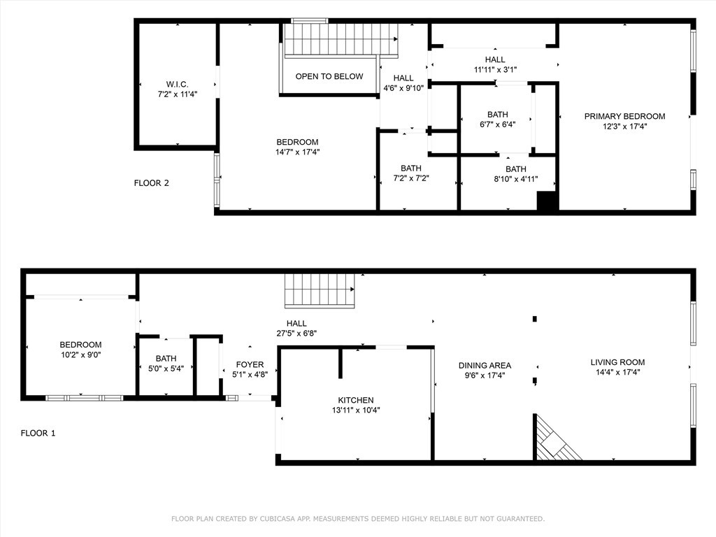
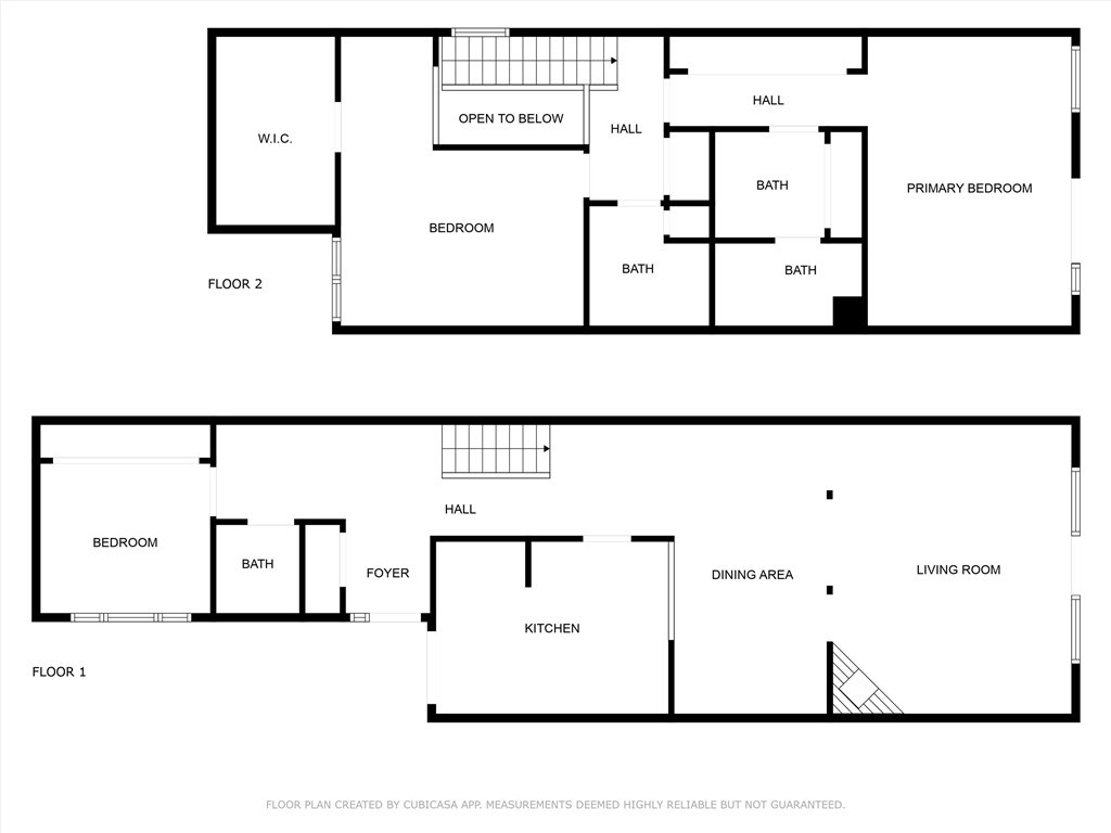
Waterfront Living at the Lowest Price in Seagate! Dreaming of life on the water? Welcome to Seagate—Huntington Harbour’s premier private community—where this Davenport model townhome delivers the perfect blend of coastal charm and modern upgrades. Nestled on Trinidad Island, you’re steps from Huntington Harbour, Mother’s Beach, and Seabridge Park, with Bolsa Chica Wetlands and State Beach just a short bike ride away. Inside, this 3-bedroom, 2.5-bath residence offers a flexible floor plan with a convenient downstairs bedroom and powder bath, plus an enclosed front patio that opens to warm Spanish tile floors. A custom wrought-iron staircase leads upstairs, while the chef’s kitchen features granite counters, a 5-burner Verona range, LG refrigerator, GE wine fridge, Thermador dishwasher, KitchenAid trash compactor, and oversized farmhouse sink. Cook in style as the kitchen flows into the dining and living areas, complete with a cozy fireplace and direct access to your private waterfront patio. The upstairs primary suite is the crown jewel—showcasing vaulted ceilings, dual mirrored wardrobes, a remodeled ensuite bath, and serene water views from a private balcony. Across the hall, the spacious third bedroom offers a large walk-in closet with built-in LG washer and dryer. Recent updates include dual-pane windows, new carpet on the stairs, vinyl plank floors upstairs, recessed lighting, remodeled baths, and included wall-mounted TVs. Step into your backyard to launch a kayak or paddle board directly from your own waterfront access. Seagate residents also enjoy two resort-style pools, a spa, six tennis courts, clubhouse, and a yacht club. This is your chance to live the Harbour lifestyle—at the best price in Seagate.

Show More
Property Type Townhouse
Lot Size 1,796 sq. ft.
Year Built 1977
MLS # OC25186615
Listing Type Closed
Heating Forced Air
Cooling Central Air
Pool Community
Laundry In Closet, Inside, Upper Level
Parking Garage
Gated Community No

Payment Calculator

40% Complete (success)
80% Complete (danger)
20% Complete
80% Complete (danger)
60% Complete (warning)
Principal and Interest
Property Taxes
Homeowners' Insurance
HOA Dues
Mortgage Insurance
Image Calculator Icon Customize Calculations | Compare Mortgage Rates

Property Details for: 3625 Windspun Drive

Interior Features

Bathroom Information
  • 2 full baths, 1 half bath
Laundry Information
  • In Closet
  • Inside
  • Upper Level
Fireplace Information
  • Living Room
Interior Features
  • Balcony
  • Granite Counters
  • Recessed Lighting
Heating & Cooling
  • Central Air
  • Forced Air

Parking / Garage, Multi-Unit Information, Location Details

Interior Information
  • Balcony
  • Granite Counters
  • Recessed Lighting
Parking Information
  • Garage
Community Features
  • Units in Complex (Total) 338

Exterior Features

Pool & Spa Information
  • Community
  • Community
Building Information
  • Total Floors: 2

Property / Lot Details

Property Features
  • Water
Lot Information
  • Lot Size (Sq. Ft) 1,796
Property Information
  • Attached
  • Tax Parcel Number: 17870137

Recently Sold Homes Near 3625 Windspun Drive

Nearby Businesses

  • Grocery Stores
  • Drug Stores
  • Coffee Shops
  • Restaurants
  • Health & Medical
  • Fitness & Activity
  • Arts & Entertainment
  • Nightlife & Bars
    Browse all businesses in Huntington Beach, CA, 92649

    Tour This Condo

    FRIDAY

    5

    DEC

    SATURDAY

    6

    DEC

    SUNDAY

    7

    DEC

    MONDAY

    8

    DEC

    TUESDAY

    9

    DEC

    WEDNESDAY

    10

    DEC

    THURSDAY

    11

    DEC

    Schedule A Tour
    Ryan Case, Licensed Realtor & Team Lead

    Ryan Case

    Licensed Realtor & Team Lead

    949-570-4445 Contact Ryan Case
    Listing provided by agent Dusty Mulhearn BRE# 01909037 at Real Broker.

    Last Updated: 76 days ago

    Similar Condos For Sale

    For Sale

    $ 1,750,000

    4 beds, 3 baths, 2,057 sq.ft.

    3631 Windspun Drive ...
    View All 157 Condos