3954 Aladdin Drive

Huntington Beach, CA 92649

$ 1,075,000

Price

2

Beds

1.5

Baths

1,257 Sq. Ft.

$855 / Sq. Ft.

14 Days On Market

Favorite

Share

Have You Been Pre-Qualified? Start Now

Listing provided by agent Scot Campbell BRE# 00943759 at Coldwell Banker-Campbell Rltrs.

Last Updated: 1 days ago

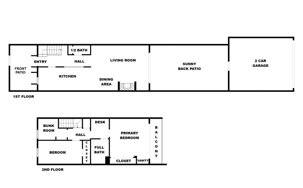
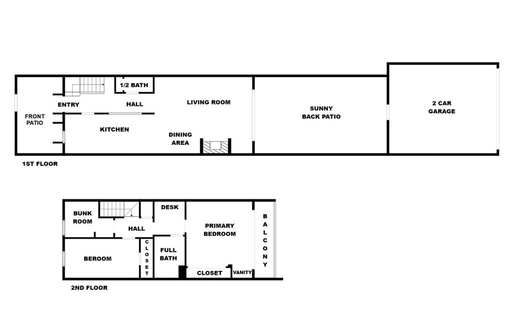
Wake up in the morning to a cup of coffee, sunshine, blue skies, and Ocean & Catalina Views from the master balcony of this “Weatherly Bay” townhouse in Huntington Harbour! There are so many recreation opportunities… This unique development is a short stroll to the beach, Bolsa Chica Nature Preserve, Huntington Harbour Yacht Club, Sea Legs, and many other restaurants & shops in the Sunset Beach area. And, the development includes pool, spa, tennis courts, and boat docks (for rent from other homeowners). So, go for a surf, sunbath, take a bike ride, paddle board the harbour, go boating/fishing, or stroll the wetlands or to one of the many casual restaurants just a few blocks away! This 2 Bedroom + Office unit is very desirable because it is low density… only two stories. The detached 2 car garage (with new cabinets and slat organizer walls) has access into a private, spacious, & relaxing patio… and direct entry from the patio into the back door. So, no carrying groceries up the stairs, Yea! The kitchen has bright white cabinets, granite counters, and NEW Stainless Appliances including Refrigerator, Oven, Washer/Dryer! Come take a look at this one if you are the type of person who enjoys an active "beach close" lifestyle. Yes, we have a Walk-Thru 3D Tour, please look for the link/icon on whatever system you are using to view the listing.

Show More
Property Type Townhouse
Year Built 1965
MLS # OC26000899
Listing Type Active
Heating Central, Forced Air
Pool Association, Community, In Ground
Laundry Dryer Included, In Kitchen, Washer Included
Parking Garage

Payment Calculator

40% Complete (success)
80% Complete (danger)
20% Complete
80% Complete (danger)
60% Complete (warning)
Principal and Interest
Property Taxes
Homeowners' Insurance
HOA Dues
Mortgage Insurance
Image Calculator Icon Customize Calculations | Compare Mortgage Rates

Property Details for: 3954 Aladdin Drive

Interior Features

Bathroom Information
  • 1 full bath, 1 half bath
Laundry Information
  • Dryer Included
  • In Kitchen
  • Washer Included
Fireplace Information
  • Living Room
Interior Features
  • Cathedral Ceiling(s)
Heating & Cooling
  • Central
  • Forced Air

Parking / Garage, Multi-Unit Information, Location Details

Interior Information
  • Cathedral Ceiling(s)
Parking Information
  • Garage

Exterior Features

Pool & Spa Information
  • Association
  • Community
  • In Ground
  • Association
  • Community
  • In Ground

Property / Lot Details

Property Features
  • Catalina
  • Coastline
  • Ocean
  • Water
  • White Water
Lot Information
Property Information
  • Attached
  • Tax Parcel Number: 93082044

Nearby Businesses

  • Grocery Stores
  • Drug Stores
  • Coffee Shops
  • Restaurants
  • Health & Medical
  • Fitness & Activity
  • Arts & Entertainment
  • Nightlife & Bars
    Browse all businesses in Huntington Beach, CA, 92649

    Tour This Condo

    SATURDAY

    24

    JAN

    SUNDAY

    25

    JAN

    MONDAY

    26

    JAN

    TUESDAY

    27

    JAN

    WEDNESDAY

    28

    JAN

    THURSDAY

    29

    JAN

    FRIDAY

    30

    JAN

    Schedule A Tour
    Ryan Case, Licensed Realtor & Team Lead

    Ryan Case

    Licensed Realtor & Team Lead

    949-570-4445 Contact Ryan Case
    Listing provided by agent Scot Campbell BRE# 00943759 at Coldwell Banker-Campbell Rltrs.

    Last Updated: 1 days ago